more rigid than diamond lath and helps to prevent Plaster loss
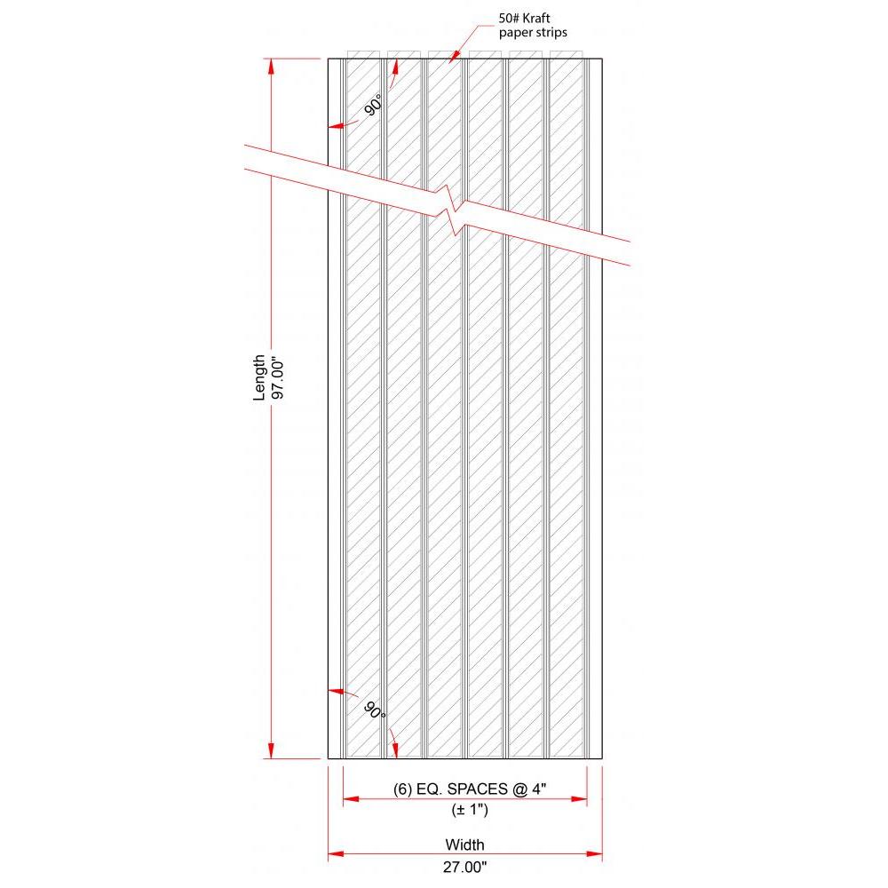
3-3/16" wide strips of plain 50lb kraft paper spot attached with glue between the herringbone mesh pattern with seven, 3/8" deep longitudinal solid steel ribs spaced at 3-7/8" intervals across the sheet.
Spray Rib Lath provides the superior strength and exceptional rigidity of regular 3/8" High Rib Lath while the addition of the strips of kraft paper limits the loss of plaster when used over open framing or when spray applied. Spray Rib Lath is not a replacement for Grade-D weather resistant barrier.
Spray Rib Lath is the same as 3/8” High Rib Lath with paper attached and is only available in the West Coast.
Product Data & Ordering Information
Material: G60 Galvanized Steel
Packaged: 25 bundles or 250 pieces per pallet
| Product Code | Wt./Sq. Yd. | Sheet Size | Pcs./Bdl. | Yds./Bdl. | Yds./Pallet |
|---|---|---|---|---|---|
| LARS | 3.4 lbs. | 27" x 97" | 10 | 20 | 500 |
Documents
Code Approvals & Performance Standards
- ASTM A653 Standard Specification for Steel Sheet, Zinc-Coated (Galvanized) or Zinc-Iron Alloy-Coated (Galvannealed) by the Hot-Dip Process
- ASTM C847 Standard Specification for Metal Lath
- ASTM C1063 Standard Specification for Installation of Lathing and Furring to Receive Interior and Exterior Portland Cement-Based Plaster
- Intertek CCRR-0204 Metal Lath - Code Compliance Research Report
- SDS For ASTM A653 Steel Finishing Products For Interior Finishing and Exterior Finishing
PRoduct submittal SHeets
Click the below Product Code to view Submittal/Tech Datasheet.
| Product Code | Description |
|---|---|
| LARS | Spray Rib Lath |
ClarkDietrich SubmittalPro®
Submittal sheets for the exact product you're looking for can be created by using ClarkDietrich's SubmittalPro® Product Submittal System.
- Contact ClarkDietrich Technical Services at 888-437-3244 for any questions about creating product submittals or using SubmittalPro.